Houses in Nishigamo
西加茂の家
| 作庭 | 2017年 |
|---|---|
| エリア | 京都市北区 |
| 建築設計 | 中田哲建築設計事務所+好日舎 |
| 造園設計施工 | 株式会社いば庭園 |
| 受賞 | 2017年度グッドデザイン賞受賞 |
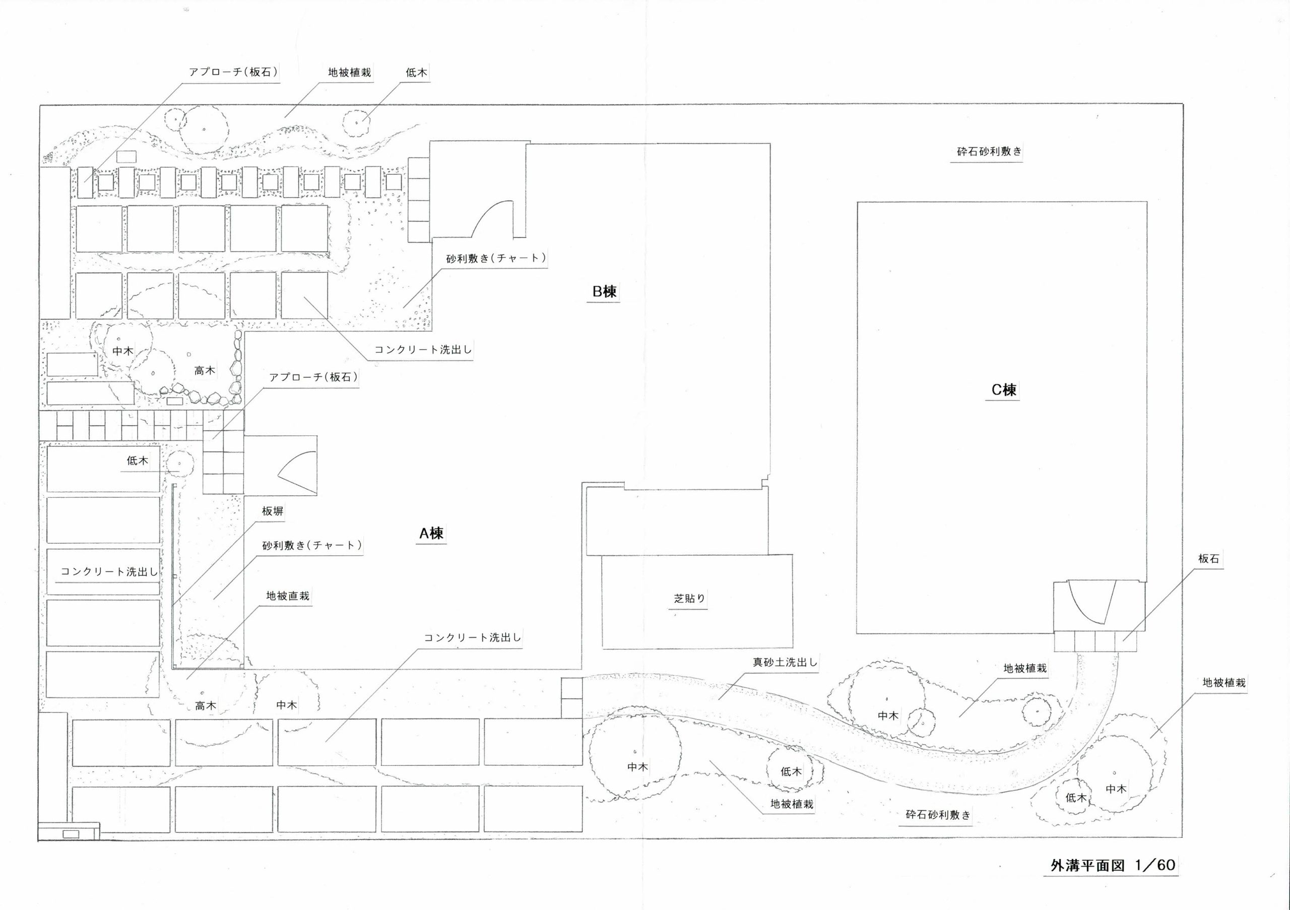
京都市北西部の西加茂において老朽化したアパートの建て替えで計画された総二階、3世帯が入居する賃貸住宅物件。
建築家の庭を共有するというコンセプトのもと造園計画を行い、リビングなど生活の拠点となる居室から樹木が見えつつ奥行と広がりを感じさせるような植栽構成とした。ガレージ土間は平面的な仕上げにするのではなく表面を洗出し骨材を見せ、棟毎に違う区切りとした。
こちらの物件は2017年度グッドデザイン賞を受賞されています。